Prawa powietrzne w Sliema












€3,000,000
Wystawione przez: Bernards
Ostatnia aktualizacja:
ID Referencyjne: 029018
Opis
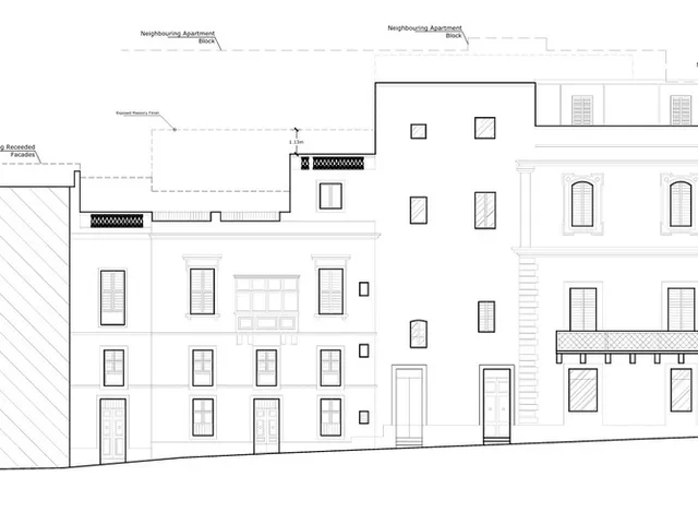
SLIEMA – Na sprzedaż w Sliemie dostępna jest wyjątkowa, wolnostojąca, prestiżowa działka o powierzchni 240 m², położona na rogu dwóch ważnych ulic w jednej z najbardziej pożądanych dzielnic handlowo-mieszkaniowych Malty. Ta rzadka okazja obejmuje już uzyskane pozwolenia na budowę wielofunkcyjnego budynku (mieszkalno-komercyjnego) o potencjale rozwojowym 4+1 kondygnacji, z dodatkową możliwością przekształcenia w hotel, co czyni ją wybitną inwestycją w centralnej lokalizacji. Nieruchomość sprzedawana jest jako teren inwestycyjny, oferując doskonałą frontową ekspozycję i maksymalną widoczność, idealna dla inwestorów i deweloperów poszukujących ikonicznego projektu w tętniącej życiem okolicy. To strategiczny zakup o silnej komercyjnej ekspozycji i wyjątkowym potencjale rozwojowym w sercu Sliemy, idealny dla deweloperów i inwestorów pragnących wykorzystać prestiżową działkę narożną.
Szczegóły
Piętra
5
Całkowita powierzchnia
240
Typ
Działka
Location
Statystyki
Poproś o informacje

Wystawione przez
Bernards
Bernards
Poproś o informacje